CASA PASILLO PH A ESTRENAR PISCINA PICHINCHA ROSARIO

BROWN 2761 - Alberto Olmedo, Rosario, Santa Fe

  • PH
  • 3 Dormitorios
  • 4 Ambientes
  • 3 baños
  • 223.70mt²
  • USD 295.000 En Venta

Descripción

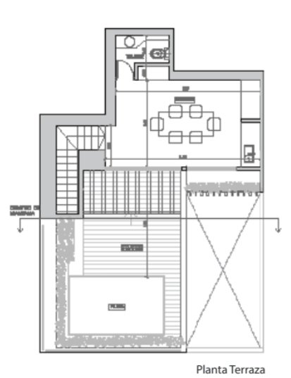
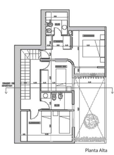
Casa pasillo PH a estrenar en Pichincha, Rosario: una propuesta moderna, luminosa y funcional, pensada para disfrutar cada ambiente con comodidad y calidez ✨ Desarrollada en tres niveles, ofrece 223,70 m² totales (154,10 m² cubiertos, 15,20 m² semicubiertos y 54,40 m² descubiertos) 📐 Planta Baja: - Amplio patio de acceso, con luz natural y clima acogedor para descansar al aire libre 🌿 - Cocina con isla, moderna y práctica, integrada al estar-comedor amplio y versátil 🍽️🛋️ - Toilette de recepción 🚻 - Lavadero independiente con acceso desde la cocina 🧺 Planta Alta: - Suite principal con baño propio, pensada para el confort y la privacidad 🛏️🚿 - Dos dormitorios secundarios con placares empotrados de gran capacidad 🧥 - Baño completo compartido 🛁 - Terminaciones de calidad, con revestimientos, griferías y sanitarios de primera línea 🧱✨ Terraza: - Quincho con parrilla, mesada con bacha y espacio para gran mesa: ideal para reuniones y celebraciones 🔥🍷 - Sector de solárium y piscina para disfrutar en la intimidad del hogar ☀️🏊 PH de 4 ambientes, a estrenar, con pileta y apto mascotas 🐾 Entrega estimada: 02/2027 ⏳ Un hogar versátil y cálido, listo para vivir y disfrutar cada momento.

Código KP453217
Categoría PH
Estado Activa
Venta USD 295.000
Dirección BROWN 2761
Barrio Alberto Olmedo
Ciudad Rosario
Provincia Santa Fe

Contáctanos

MIBI INMOBILIARIA